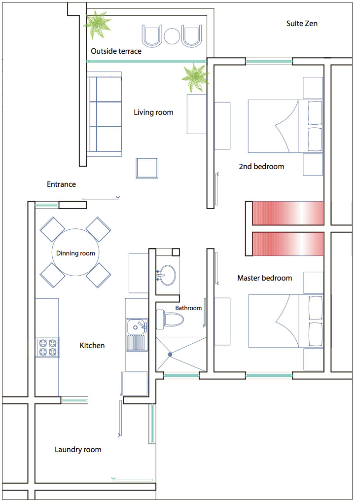
Suite Zen

Back

Two bedroom suite on second floor with private terrace (poolside view). Fully furnished, WiFi, cable TV and cookware.

The master bedroom has a queen size bed and the second bedroom a double bed. One sofa bed in the living room, air conditioner in living room and each bedroom, a 32" inches flat screen, ceiling fans in living room and each bedroom, safe-deposit box and laundry room.

Home

Gallery

Suites

Contact

Exclusive for ages 16+

PUERTO VALLARTA, MEXICO

Reservations

Copyright© 2018. ZenHarmony. All rights reserved.

Havre 261, Col. Versalles

Puerto Vallarta, Jal. México 48310

Phone: (+52) 322 293 0022